Familjen Blomster hade både renoverat och byggt ett nytt hus innan det blev dags att på riktigt förverkliga den stora drömmen: Att bo lantligt i en rymlig herrgård med gott om plats för allas intressen! Jonas och Elsa hade också en önskan om att hyra ut bostäder för att skapa sig mer ekonomisk frihet i vardagen. Under 2020 tog de första steget mot drömmen och köpte en gård i Marks kommun. Idag står familjens nybyggda herrgård färdig, precis så vacker som de hade hoppats och drömt om.
Familjen Blomster består av Jonas, Elsa och deras två barn Viola 6 år och Verner 3,5 år. Självklart också de tre hundarna Rowan, Kean och Yarrow, katten Trixa, några höns och några kaniner. Resan mot herrgården började med ytterligare en renovering. När de hade köpt gården flyttade de in i det befintliga bostadshuset och renoverade det i väntan på att det stora byggprojektet skulle dra igång.

Välkomna hem till Jonas, Elsa, Viola och Verner!
På gården låg tidigare en ladugård. För att kunna bevara den sökte familjen förhandsbesked om att få bygga det nya huset en bit därifrån. Eftersom husets placering skulle innebära byggnation på odlingsbar mark fick de avslag från kommunen. Familjen valde då att riva ladugården och placera det nya huset där istället. Denna placering skapade perfekta förutsättningar för familjens nästa projekt: två flyglar som inrymmer garage och lägenheter att hyra ut.



“Vi har byggt ett hus tidigare och då var det ett koncept där väggarna levererades färdiga från en husfabrik. Vi var inte helt nöjda med den lösningen så denna gången ville vi använda oss av lösvirke. Vi besökte många husleverantörer men inget kändes bra. Tillslut googlade jag och hittade Alingsås Huspaket. Vi fastnade för deras koncept att bygga i lösvirke med färdigkapad stomme och när vi besökte deras fabrik fick vi en jättebra känsla. Vi fick väldigt bra service”, säger Jonas.

Från den stora hallen kommer man in till matsalen som är länken mellan kök, vardagsrum och det blivande biblioteket.
I september 2022 flyttade familjen in i det 284 kvm stora huset på gården som fått namnet Blomstergården 1, efter att Elsa övertalat kommunen till namnbytet. Precis som i alla husbyggen är det en lång process att ta sig igenom, från ritning och bygglov till byggnation och slutsamråd. Men trots att huset är på nästan 300 kvadratmeter, och att Jonas och Elsa har gjort det mesta av det invändiga arbetet själva så gick bygget fort. Det tog endast åtta månader från gjutning av bottenplattan tills de kunde flytta in på nedervåningen i slutet av augusti 2022.

Alla i familjen trivs fint i det nya vardagsrummet som har ljusinsläpp och utsikt över markerna i tre väderstreck.
För att få godkänt på slutsamrådet och kunna flytta in i huset färdigställde Jonas och Elsa nedervåningen med kök, badrum, tvättstuga och tre sovrum först. Sedan flyttade de in, vilade en kort stund, och gjorde färdigt övervåningen under 2023. “Innan slutsamrådet när kommunen skulle komma jobbade vi till kl 04.00 på natten. Kl 02.00 var golvet på nedervåningen klart, så det var tajt”, skrattar Jonas.


I badrummet på nedervåningen har familjen valt ett vackert viktorianskt golv med ett inkaklat, väggnära linjeavlopp som blir näst intill osynligt.
“Vi hade en idé om att göra färdigt övervåningen till julen 2022 men vi orkade inte det, så det fick ta den tiden det behövde. Vi lade otroligt mycket tid på att färdigställa huset invändigt, samtidigt som både jag och Jonas jobbade heltid. Jag minns att jag rullade barnvagnen så att Verner skulle somna, samtidigt som jag gipsade. Barnen har tyckt att det varit roligt att vara med på bygget, men det blev ju lättare när nedervåningen blev klar”, säger Elsa.

Kyl, frys, ugn, fläkt och micro är från varumärket Gorenje.
Utanför Växjö där Elsa är uppvuxen finns herrgården Billa Nygård. Därifrån har familjen hämtat inspiration till Blomstergården. De ville nyttja vissa traditionella sätt att bygga hus på, och samtidigt ha de moderna bekvämligheter som ett nytt hus innebär. Planlösningen är i grunden två filer med tre rum i varje fil, som modifierats efter familjens behov.

Köket har ett stort inbyggt skafferi och i ett av hörnen har Jonas installerat en tapp för både kolsyrat vatten och öl.
“Förr la man alltid köket mot norr eftersom att det är som svalast, och placerade skafferiet mot ytterväggen. Här valde vi istället att lägga köket åt väster för att få den fina utsikten över åkrarna från köket. För oss var det viktigt att få plats med ett ännu större skafferi än det vi hade innan, och det placerade vi så att det hamnade centralt i huset istället för mot ytterväggen i väst”, berättar Elsa.

Allrummet har målats i en härlig och ombonad kulör med namnet Welcoming Red från Jotun.
“På övervåningen har vi tagit hjälp av en inredningsarkitekt. Hon tog fram förslag på den mörkröda väggfärgen. Det var även hennes idé att välja en grön soffa. Utan henne hade jag aldrig vågat det men nu är jag väldigt nöjd. Jag älskar tapeter och har valt tapeter till nästan varje rum. De besluten fick Jonas hålla sig utanför”, säger Elsa och skrattar. Hon berättar också att de haft vitt på väggarna i sina tidigare hus, vilket de helt frångått här på Blomstergården. En av anledningarna till att Elsa valt att satsa på mer kulör här är att det känns mer ombonat och lättare att få det mysigt. Dessutom syns inte smutsen från hundarna lika tydligt heller.

Parets sovrum går i gröna toner med rosaröda inslag som går ton i ton med färgerna i allrummet intill.
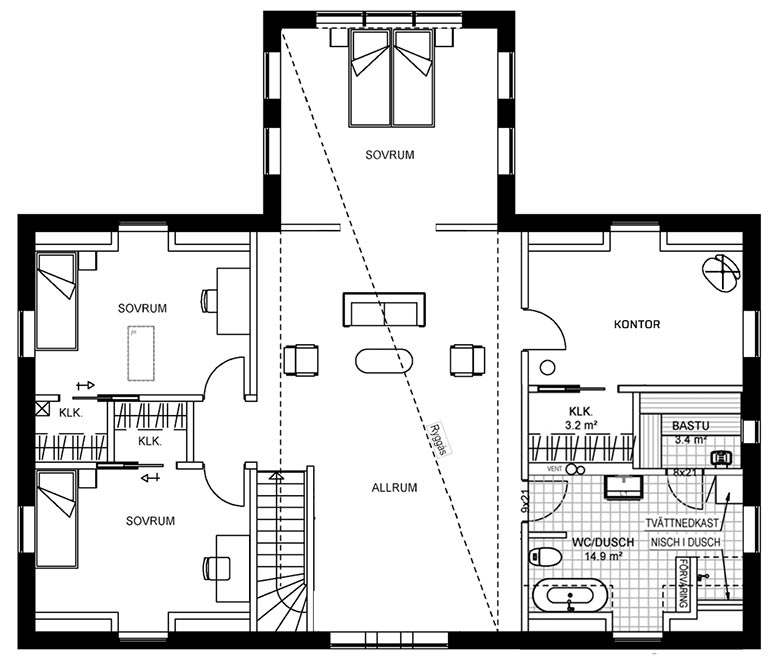
Från det stora allrummet på övervåningen når man parets sovrum som avskärmas med två skjutdörrar. Här uppe finns även barnens två sovrum, ett kontor samt ett stort badrum med badkar och bastu. Eftersom familjen har stora hundar, som ökar slitaget på husets ytskikt, har de valt att lägga in ett extra tåligt golv. Valet föll tillslut på ett högtryckslaminatgolv som även är klassat för offentlig miljö.

I det stora rummet på övervåningen kompletteras den varma väggfärgen av textilier i djupa gröna toner.
En fördel med att bygga i lösvirke är att man har möjlighet att göra justeringar under byggets gång. En sådan justering gjorde familjen Blomster när de färdigställde övervåningen. Under byggtiden såg de hur fint ljuset föll in i allrummet både från sydväst och från sovrummet i nordöst. I de ursprungliga ritningarna skulle det suttit en innervägg intill trappan som skulle utgjort ett kontor. Efter att ha känt in rummet under bygget valde familjen istället att låta planlösningen vara öppen för att behålla det vackra ljusinsläppet.

Familjens hemmakontor går i ljusa och lugna toner.
“Vi hade hjälp av några snickare som reste stommen, satte ytterpanel och gjorde huset tätt. Sedan tog vi över och gjorde färdigt huset invändigt, tillsammans med elektriker och plattsättare med flera. Snickarna hade inte arbetat med detta konceptet från Alingsås Huspaket tidigare, men de tyckte att det fungerade väldigt bra. Dialogen med Alingsås Huspaket har fungerat jättebra och alla leveranser har varit smidiga. Någon gång ville vi till exempel skjuta fram en leverans och då var det inga problem”, säger Jonas.
Från badrummet på övervåningen finns ett tvättnedkast rätt ner i ett skåp i tvättstugan.
“Vi var i Alingsås Huspakets showroom ett par gånger. Det var bland annat bra att titta på olika fönstermodeller och spröjs. Först hade vi ritat huset med krysspröjs men sedan ändrade vi oss till raka spröjs eftersom vi ville ha dem utanpåliggande. Då räknades det som en ändring i bygglovet. Våra allmogelister valde vi också från Alingsås Huspaket. Vår golvsockel är 12 cm hög och det är inte standard, men de hjälpte oss att hitta en modell som vi gillade”, säger Elsa.

I Sportrummet gillar hela familjen att spela airhockey tillsammans.
Här på Blomstergården finns gott om plats för familjens olika intressen. Marken är 13 hektar och här kan Elsa träna hundarna och arbeta med sin kursverksamhet inom apportering. Jonas har ett helt rum avsett för sitt stora sportintresse. Här finns ett biljardbord som går att förvandla till ett airhockeybord, en bar, och en TV som snart ska få sällskap av ytterligare en. Det som Jonas nämner som favoritdetaljen i huset sitter dock i köket. En kran som levererar både stilla vatten, kolsyrat vatten och öl! Om Elsa bara får välja en enda detalj i huset som favorit säger hon det kaklade golvet i badrummet på nedervåningen.

Ett kapprum i fil binder samman husets huvudentré med groventrén. Här har alla i familjen varsin garderob.
På nedervåningen har familjen skapat en smart och rymlig lösning för groventré och tvättstuga. Till höger om herrgårdens stora hall leder ett kapprum vidare till en groventré med gott om plats för ytterkläder. Därifrån når man tvättstugan som medvetet ligger avskilt placerad från groventrén. Innanför tvättstugan finns ett mindre förråd som också fungerar som teknikrum.

Bra förvaring är något som varit viktigt för familjen Blomster. “I barnens rum fick vi till förvaringen jättebra, de har varsin klädkammare. Det var en lösning som Alingsås Huspaket kom på och hjälpte oss att få till. Vi har haft en bra dialog med Alingsås Huspaket hela tiden och vi har känt att de tagit hand om våra tankar. Vi har kommit med många bilder på hur vi vill ha det. Det har varit skönt att kunna säga – såhär och såhär vill vi ha det, och så har de löst alla våra önskemål”, säger Elsa.

I Verners rum går färgskalan i grönt och rosa helt enligt hans egna önskemål.
Det omfattande markarbetet som Jonas och Elsa gjorde innan huset kunde byggas innefattade bland annat att höja vägen fram till herrgården. De passade även på att förbereda och göra markarbetet för de två flyglarna som ska byggas i framtiden. Dessa byggnader kommer att göra Jonas och Elsas dröm om en herrgård komplett. Elsa och Jonas är båda väldigt stolta över Blomstergården. “Varje morgon när jag åkte till jobbet stannade jag till med bilen här utanför och tänkte – gud vad fint det blir”, säger Jonas.

Snickarglädjen på huset är beställd via Alingsås Huspaket.
Flyglarna på gårdsplanen kommer ha plats för ett garage och tre stycken lägenheter för uthyrning. Familjen har redan hunnit testa på att hyra ut herrgården när de själva var på semester, och huset på gården som de bodde i tidigare har de nu på långtidsuthyrning. “Vi skulle verkligen vilja inspirera fler till att hyra ut. Boendekostnaderna för ett sådant här hus blir väldigt bra tack vare det.” säger Elsa.

De vackra takkuporna är en “Herrgårdskupa” som också levereras av Alingsås Huspaket. De kommer färdiga vilket gör att snickarna själva kan montera dem på taket.
Våra bästa tips:
- Fundera på hur mycket ni vill göra själva. Vi ville göra mycket själva, men sedan drog markarbetet över budgeten så då fick vi ändå göra lite mer än vad vi hade tänkt.
- Att både hitta en bra snickare och en bra kontrollansvarig (KA) är superviktigt. Var ute i god tid och ta referenser.
- Och hitta en bra kontakt att hålla i handen under hela processen, som Alingsås Huspaket till exempel. Någon som man kan ställa alla sina frågor till.
- Vårt sista tips är nog – gör det bara!
Kortfakta:
- Hustyp: 2-planshus
- Storlek: 284 kvm
- Antal rum: 9 rum och kök
- Plats: Marks kommun
- Byggtid: Cirka ett år
- Inflyttning: September 2022
